Este site utiliza cookies para permitir a mudança de língua e o armazenamento dos seus imóveis favoritos. Ao utilizar este site, concorda que o mesmo utilize cookies.

Apartamento T1

Preço sob consulta



Referência

0813F

Natureza

Venda

Tipo de Imóvel

Apartamento

Subtipo de Imóvel

Andar Moradia

Tipologia

T1

Estado

Recuperado

Certificado energético

E

Ano

2026


Distrito

Aveiro

Concelho

Ovar

Freguesia

Ovar, S.João, Arada e S.Vicente de Pereira Jusã

Código Postal

3880


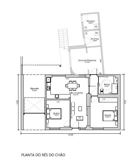
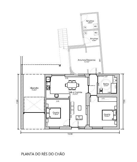
Área Útil

59.2 m2

Área Bruta

65 m2

Área de Terreno

0 m2



Contactar Imobiliária

*Preenchimento obrigatório
Ao clicar em 'Enviar', declara que aceita a nossa Política de Privacidade.
Apartamento T1 novo, a estrear, com conclusão prevista para o final do ano.
Ideal para habitação própria ou investimento — preço difícil de bater para imóvel novo.

✔️ Construção moderna
✔️ Acabamentos atuais
✔️ Zona tranquila
✔️ Excelente oportunidade

O seu primeiro lar ou para investimento. 
Situado  no 1.º andar, num imovel apenas com 3 apartamentos.

Foi pensado para quem valoriza conforto, tranquilidade e localização.

Aqui tem espaço para respirar:
uma pequena varanda para os seus momentos de pausa, um quintal para aproveitar os dias de sol e dois lugares de estacionamento que lhe facilitam a vida todos os dias.

A localização faz a diferença.
Em 5 minutos está na A29.
Em 15 minutos está na praia — Furadouro, Esmoriz, Maceda… escolha o destino, o caminho é fácil.
Zona calma, ideal para viver com qualidade ou investir com segurança.

Acabementos modernos e atuais.

155.000 €
Um valor raro para um apartamento novo com estes extras.

Há casas que são só imóveis.
Outras sentem-se como lar.

• Estacionamento Privativo
• Isolamento exterior em capoto
• Tetos e paredes interiores revestidos a pladur hidrófugo/estanhado fino
• Isolamento interior dos tetos com lã de rocha
• Caixilharia em PVC com corte térmico e vidro duplo
• Estores elétricos
• Iluminação embutida led
• Piso em vinil em tom de madeira até 25,00€ m2*
• Cerâmica nas casas de banho, retificada até 20,00€ m2*
• Carpintaria lacada branca incl portas e armários
• Cozinha lacada branca com detalhes em folha de madeira; Tampos tipo silestone*
• Eletrodomésticos marca Meireles A+: forno, placa de indução, máquina da louça,
combinado e exaustor
• Wc completos com bases e sanitários compactos
• Pré-instalação do ar condicionado
• Bomba de calor/termo acumulador
• Portão motorizado
• Vídeo porteiro

Quando os bons negócios aparecem, não duram muito.

* fotos do projeto
* certificado energético da casa atual
Geral
GeraisNº de Casas de Banho:1

Este imóvel não tem áreas definidas.

Imóveis
Semelhantes

Apartamento
Venda
RESERVADO

Preço sob consulta

Apartamento T1 + 1

Preço sob consulta

Aveiro / Ovar / Ovar, S.João, Arada e S.Vicente de Pereira Jusã


Ref: 0814F

Ref: 0814F

64.3 m2

1

1

Apartamento
Venda

250.000€

Apartamento T2, Ovar

250.000€

Aveiro / Ovar / Ovar, S.João, Arada e S.Vicente de Pereira Jusã


Ref: 0810F - C

Ref: 0810F - C

75 m2

2

1

Sim

Apartamento
Venda
RESERVADO

Preço sob consulta

Apartamento T2 + 1

Preço sob consulta

Aveiro / Ovar / Ovar, S.João, Arada e S.Vicente de Pereira Jusã


Ref: 0815F

Ref: 0815F

105.75 m2

2

1